
087-886-8161[営業時間]8:00~17:00 [定休]日曜日

バイオ型水洗トイレ「ウォータス」は、従来の仮設トイレの概念を大きく変える革新的なトイレです。
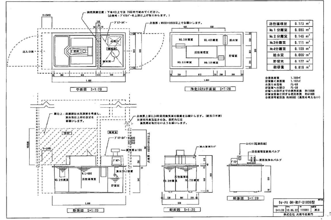
水が常時循環し、衛生的で無臭に近い快適な環境を提供するため、建設現場やイベント会場、災害時の仮設施設など、さまざまな場所で活躍しています。


バクテリアによる排泄物の分解と水の浄化により、24時間連続で水が循環し、衛生的な環境を維持します。環境負荷を抑えたエコ設計で、水資源を効率的に利用します。
従来の仮設トイレにありがちな臭気を抑え、快適な使用感を提供。長期間の使用でも高い衛生状態を保ちます。
設置場所を選ばず、上下水道がない場所でも使用可能。初回設置時に必要な水量を確保すれば、後は循環システムで補います。
吸い取りの頻度が少なく、メンテナンスにかかる手間を軽減。作業効率が上がり、コストの削減にも貢献します。
長期間の工事現場でも清潔で快適な環境を提供し、作業員の衛生管理を徹底します。
短期イベントでも来場者が安心して使用できる快適なトイレ環境を確保。多目的トイレのオプションも対応可能です。
災害時の避難所や一時的な宿泊施設など、上下水道が整備されていない場所でも迅速に設置でき、衛生環境を支えます。
水を効率的に利用し、排水ゼロで周囲環境を汚さない設計。エコフレンドリーなトイレとして多くの現場で採用されています。
メンテナンス頻度が少なく、吸い取り作業も従来より軽減されるため、長期利用でもランニングコストを抑えられます。
短期レンタルから長期使用まで、用途や環境に合わせた柔軟なプランを提供。レンタルや販売、設置から撤去まで一貫したサポートが可能です。